Humboldt 2142, piso 3

HQ x A3 es una solución llave-en-mano y gestionada 100% por AreaTres en base a tus requerimientos.
Sin inversión (CAPEX) y en las mejores locaciones de Palermo y alrededores.

Palermo Hollywood.
Humboldt 2142, piso 3.

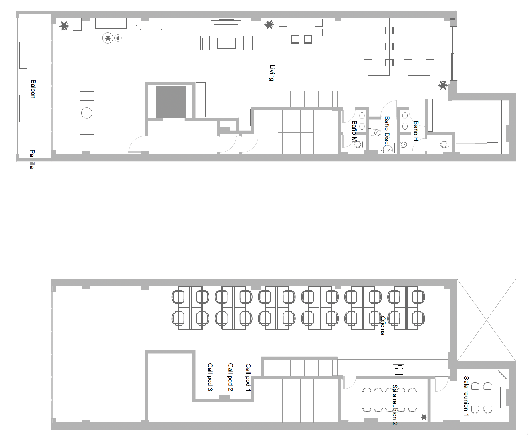
Esta oficina estilo loft de 260m2 con pulmón de doble altura es ideal para equipos de 30 a 45 personas según el layout que deseen.


  • Acceso a tu oficina 100% customizada a medida 24x7, los 365 días del año.

  • Layout y mobiliario diseñado a medida en base a tus requerimientos.

  • 2 salas de reunión equipadas con pizarra blanca, monitor HD y Chromecast.

  • Operations Manager de A3.

  • Mobiliario de primera línea con muebles de diseño.

  • Luz, agua e internet a medida.

  • Limpieza diaria.

  • Mantenimiento y soporte técnico. 

  • Incluye todo gasto relacionado a la oficina: 
Expensas del edificio, ABL, etc.

Incluye:

Escribinos si te interesa que AreaTres diseñe y gestione tu oficina ideal, mientras vos te ocupás de lo que importa: impulsar tu negocio.

Menos preocupaciones, más inspiración y tranquilidad 
para tu equipo, en la oficina que siempre soñaste sin CAPEX.

Por su naturaleza, estas soluciones generalmente requieren contratos mínimos de 2 a 3 años.